ГлавнаяГотовый арендный бизнес — Алюминиевая ул., 79

Алюминиевая ул., 79,
1464.50 м2

65 000 000 руб.

44383 руб./м2

Следить за ценой


Площадь: 1464.50 м2

Окупаемость, лет: 8


Предлагается в продажу торговый центр в г.Каменск-Уральский с федеральными арендаторами. Густонаселенный район, транспортная развязка. Окупаемость 8 лет!

Без комиссии для покупателей.

-Арендаторы -крупные сетевые компании «Все инструменты», "Магнум" с долгосрочными договорами и ежегодной индексацией.
- помещение расположено в центральной части города на пересечении трех крупнейших улиц; рядом остановка общественного транспорта Челябинская.
- развитая инфраструктура: рядом находятся детские сады, школы,магазины, медицинские учреждения;
- центральный вход с ул.Алюминиевая;
- дата постройки здания – 2016 г.
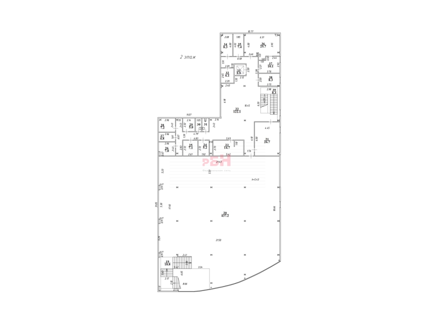
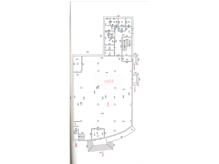
- общая площадь –1464.5 кв.м.:
- Площадь земельного участка – 1 667 м2.
Площадь 1 этажа – 714,6 м2, торговый зал – 584,5 м2. Высота потолков: 3,4 м.
Площадь 2 этажа – 752,9 м2, торговый зал – 625,6 м2. Высота потолков – 4,4 м.
- мощность –90 кВт;
- имеется грузовой лифт, автоматические ворота для разгрузки.
- удачная локация практически в центре Каменск-Уральска, первая линия, удобная парковка на 30 а/м, современные жилые многоквартирные дома.

Стоимость объекта: 65 000 000, включая НДС.


Более подробную информацию уточняйте у наших специалистов.
------------------------------------------------------
"Регион Бизнес Недвижимость".
Коммерческая недвижимость .
Без комиссии для покупателей.
Арт. 128593250

Специалист

Гортовина Яна

+7-914-271-89-91

или оставьте ваш номер,
и я перезвоню в течение 5 минут

Согласен с Политикой конфинденциальности и с Политикой оператора в отношении обработки персональных данных

Отправляя заявку вы соглашаетесь на обработку персональных данных

Посмотреть другие объявления в этой категории